Beste leden,
Na een aantal posts gelezen te hebben en me aardig verdiept te hebben in KNX netwerken ben ik nu aangekomen om een gedegen plan voor mijn nieuwbouw appartement te gaan bedenken.
Ikstuit op een aantal problemen / vragen. Ik hoop dat jullie mij kunnen voorzien van de nog ontbrekende kennis:
Mijn Appartement is nog in de bouwfase. deze zal ook pas in 2012 worden opgeleverd. Dus ik denk dat ik redelijk optijd ben om alle mogelijke opties te bekijken en af te wegen tegen over elkaar.
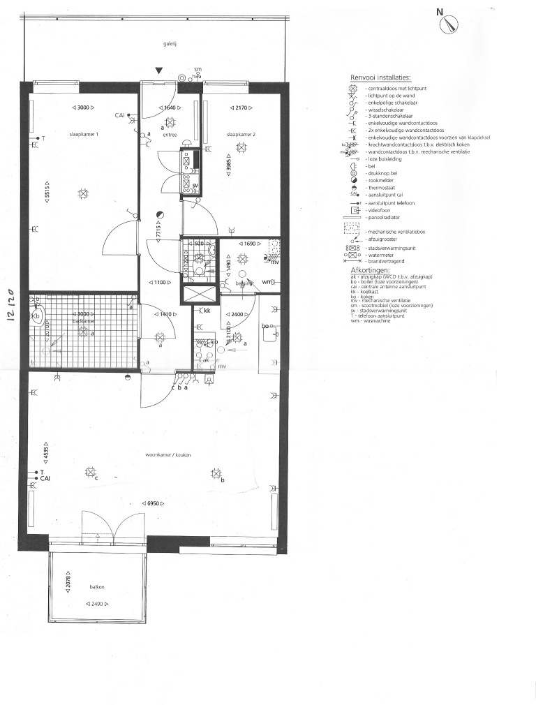
Het appartement zal bestaan uit:
- 2 Slaapkamers
- Woonkamer
- Badkamer
- Keuken
- Toilet
- Gang / hal
- Berging
De oppervlakte is 86m3. 
Ik heb me aardig verdiept in de mogelijkheden en mijn voorkeur is de leverancier Hager. Deze producten en mogelijkheden spraken mij erg aan. ik wil dan ook alles vanuit de meterkast kunnen bedienen.
Hieronder zal ik een lijst met wensen opsommen die ik gefaseerd zou willen implementeren in mijn appartement. De fasering is uiteraard vanwege de hoge kosten die aan dit soort systeem is gebonden.
- Alle lichtpunten geschakeld via KNX
- meerdere dimmende schakelpunten
- Bewegingsmelders in alle vertrekken
- Beamer laten zakken vanuit plafond
- IR/RF signalen versturen (Beamer/tv/audio/enz)
- Beamer scherm laten zakken uit plafond (deze is al electronisch)
- LED strip verlichting schakelen
- Electronische gordijnen / rolgordijnen bedienen
- Bedienings punt in Keuken/Badkamer/woonkamer/slaapkamer
- Verbruiksmeter voor electronica (totaal)
- Deurtelefoon aan- sturen/sluiten op KNX systeem
- Multimedia toepassingen
- Thermostaat aansturing (eventueel per kamer)
- Scenes kunnen inregelen (slapen/niemand thuis/ thuis komen/enz)
- Video beveiliging
- Alarm
- Rook melders
- Vloerverwarming (douche)
- Vochtmeters icm met ventilatie (douche)
- Waterverbruik meters
Dit is inderdaad een flinke lijst. Gelukkig heb ik ook de mogelijkheid om me appartement hier zo goed mogelijk op voor te bereiden. Maar nu komen voor mij de belangrijkste vragen.
- Wat is de beste manier om mijn netwerk zo flexibel mogelijk aan te leggen
- Wat voor kabel structuur zou ik moeten kiezen
- Wat zijn mijn voorbereidingen ivm kabel/loze leidingen enz
- Waar moet ik rekening mee houden
- en alle andere tuttige tips zijn natuurlijk welkom
Ik ben van plan om mijn plafond (beton) 20cm te verlagen om zo alles mooi te kunnen verwerken in me plafond (denk aan beamer/scherm/bekabeling/sensoren/enz)
Ik wil dat ook dat al het voorbereidend werk gedaan is zodat ik in de toekomst hopelijk geen buizen/bekabeling meer hoef te vrezen en trekken door plafond/muur of vloer.
Wie kan mij helpen dit idee uit te werken of te voorzien van de benodigde kennis om dit te realiseren. Ik hoop dat jullie ij kunnen helpen om van dit concept idee een solide plan te maken.
Alvast bedankt.
Maarten
			
							Nieuwbouw appartement
Nieuwbouw appartement
- Bijlagen
 - 
			
		
				
- Plattegrond appartement
 - Appartement1.jpg (119.76 KiB) 7440 keer bekeken
 
 
Re: Nieuwbouw appartement
hallo maarten, 
ik zou je best wel willen helpen met het uitwerken van jouw project als je daar intresse in hebt
zelf ben ik werkzaam als elektro installateur bij een klein bedrijf, met mts niveau op automatizerings elektronica
het lijkt me wel wat om je te advizeren in jouw project omdat hier voor mij wel een uitdaging inzit
zelf heb ik al 10 woningen gemaakt die veel groter waren maar iets minder inzat
ook hier zaten genoeg koppelingen in zoals audio visuele toepassingen van MR domotica bijvoorbeeld.
dit was ook weer bedienbaar via knx en ook andersom.
mocht je intresse hebben hoor ik het wel via email
			
			
									
									
						ik zou je best wel willen helpen met het uitwerken van jouw project als je daar intresse in hebt
zelf ben ik werkzaam als elektro installateur bij een klein bedrijf, met mts niveau op automatizerings elektronica
het lijkt me wel wat om je te advizeren in jouw project omdat hier voor mij wel een uitdaging inzit
zelf heb ik al 10 woningen gemaakt die veel groter waren maar iets minder inzat
ook hier zaten genoeg koppelingen in zoals audio visuele toepassingen van MR domotica bijvoorbeeld.
dit was ook weer bedienbaar via knx en ook andersom.
mocht je intresse hebben hoor ik het wel via email
